Utilizando grafite resistente à água, o grafite com camisa de água pode ser produzido com HCl de forma eficiente, garantindo um controle preciso da temperatura e condições de reação ideais.
Item nº :
SSLPedido (MOQ) :
1Pagamento :
Alipay PayPal westernunion T/T L/COrigem do produto :
ChinaCor :
CustomizedPorto de embarque :
shanghai shenzhen guangzhouTempo de espera :
please contact 504893184@qq.com or CP +8613696510409Pacote :
CustomizedMaterial :
GraphiteTemperatura de trabalho :
Export≤45℃,Graphite wall≤170℃Forno de síntese de cloreto de hidrogênio de grafite com camisa de água
É composto por um revestimento de aço, uma cobertura de grafite, um cilindro sintético e um fundo de forno. Possui diversas vantagens em relação a um forno com revestimento de aço, incluindo:
1. uma longa vida útil (normalmente mais de dez anos);
2. Alta pureza do ácido do produto;
3. Condições de trabalho favoráveis, com fácil controle e gestão.
Vantagens do produto
O forno de síntese de cloreto de hidrogênio com camisa de água e grafite apresenta excepcional resistência à corrosão, transferência de calor eficiente, controle de temperatura estável e durabilidade a longo prazo. Sua estrutura robusta garante desempenho confiável em ambientes químicos agressivos, proporcionando produção de HCl segura, consistente e eficiente com requisitos mínimos de manutenção.
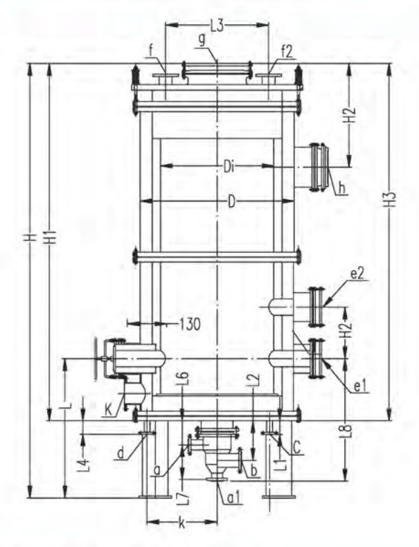
Diagrama estrutural
| Detalhes das peças | |
| 1 | Porta à prova de explosão |
| 2 | Saída de água de refrigeração |
| 3 | Saída de resfriamento |
| 4 | Saída de HCl |
| 5 | Cilindro sintético de grafite |
| 6 | Porta do forno |
| 7 | Entrada de água de refrigeração |
| 8 | Espelho |
| 9 | Três conjuntos de queimadores de vidro de quartzo |
| 10 | Espelho |
| 11 | Porta de drenagem |
| 12 | Saída ácida |
| 13 | Entrada de cloro |
| 14 | Entrada de hidrogênio |
Tabela de parâmetros do bico

| Símbolo | a | b | c | d | e | f | g | h | k |
| Especificações | DN/D1 | DN/D1 | DN | DN | DN | DN | DN | DN/D1 | DN |
| SSL-300 | 40/125 | 40/125 | 20 | 50 | 125 | 80 | 250 | 75/180 | 40 |
| SSL-400 | 55/145 | 55/145 | 20 | 50 | 125 | 100 | 250 | 100/210 | 50 |
| SSL-500 | 70/180 | 70/180 | 20 | 50 | 125 | 125 | 250 | 125/240 | 65 |
| SSL-600 | 84/210 | 84/210 | 20 | 50 | 125 | 150 | 400 | 150/295 | 80 |
| SSL-700 | 100/210 | 100/210 | 20 | 50 | 125 | 200 | 400 | 200/350 | 100 |
| SSL-800 | 115/240 | 115/240 | 20 | 50 | 125 | 200 | 400 | 200/350 | 100 |
| SSL-900 | 115/240 | 115/240 | 20 | 50 | 125 | 200 | 400 | 250/400 | 125 |
| SSL-1000 | 115/240 | 115/240 | 20 | 50 | 125 | 200 | 400 | 250/400 | 150 |
| Bocal padrão de conexão |
HG 20593 | HG 20593 | - | HG 20593 | - | HG 20593 | - | - | HG 20593 |
| Nível de pressão MPa |
1.0 | 1.0 | - | 1.0 | - | 1.0 | - | 1.0 | 1.0 |
| Utilização do bico | Entrada de hidrogênio | Entrada de hidrogênio | Saída ácida | Porta de escape | Porta espelhada | Saída de água | Porta à prova de explosão | Saída de hidrogênio hidrogenado | Entrada de água de refrigeração |